Metode Pelaksanaan Pondasi Foot Plat - Pondasi setempat (atau biasa disebut juga pondasi foot plat, pondasi telapak, atau pondasi tapak) pada umumnya digunakan untuk rumah 1 lantai, 2 lantai, 3 lantai, dan bahkan sanggup juga 4 lantai, jikalau dimensi tapak pondasi diperbesar dan tanah dasarnya cukup keras.

Metode Pelaksanaan Pondasi Foot Plat - Pondasi setempat (atau biasa disebut juga pondasi foot plat, pondasi telapak, atau pondasi tapak) pada umumnya digunakan untuk rumah 1 lantai, 2 lantai, 3 lantai, dan bahkan sanggup juga 4 lantai, jikalau dimensi tapak pondasi diperbesar dan tanah dasarnya cukup keras.. Galian tanah lebih sedikit (hanya pada kolom struktur saja). Cara menghitung jumlah besi pondasi setempat (pondasi foot plat). Pekerjaan lining dengan plat beton pra cetak ini dilakukan dengan lokasi dan tipikal sesuai dengan gambar desain. Metode pelaksanaan pekerjaan tanah cut and fill. Pembesian plat lantai beton jembatan juga menggunakan besi ulir dan dilaksanakan dengan sistem serempak untuk semua unit.

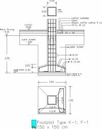
Proyek fave hotel kartika plaza) i wayan jawat 1) 1) dosen jurusan teknik sipil fakultas teknik universitas warmadewa abstrak tahap konstruksi merupakan tahap yang perlu mendapat perhatian agar tujuan utama. Sesuai dengan namanya, pondasi ini merupakan perpaduan dari pondasi batu kali dan foot plat. Pondasi foot plat juga sering disebut dengan istilah pondasi tapak. Pondasi telapak/footplat merupakan pondasi yang biasa digunakan untuk bengunan bertingkat atau bangunan di atas tanah lembek, dengan kedalaman kurang lebih 1 s/d 2 meter, disesuaikan mencapai tanah keras. Pondasi pendukungnya, yaitu foot plat dan sumuran.

Metode Pelaksanaan Pondasi Batu Kali Pondasi Telapak Kelompok 9 Tessa N H Pakpahan Nurul Utami Nova Sonia Ppt Download
Metode Pelaksanaan Pondasi Batu Kali Pondasi Telapak Kelompok 9 Tessa N H Pakpahan Nurul Utami Nova Sonia Ppt Download from images.slideplayer.info
Pondasi batu kali juga mempunyai karakter yang berbeda dengan jenis pondasi rumah yang lainnya. Besi beton yang dipakai untuk proyek ini mutu dan diameter (spesifikasi) disesuaikan dengan gambar kerja dan rks. Proyek fave hotel kartika plaza) i wayan jawat 1) 1) dosen jurusan teknik sipil fakultas teknik universitas warmadewa abstrak tahap konstruksi merupakan tahap yang perlu mendapat perhatian agar tujuan utama. Pondasi ini termasuk pondasi dangkal karena kedalaman ke tanah relatif dangkal. Daftar item metode pelaksanaan pekerjaan sebagai berikut: Secara ringkas pekerjaan pemasangan lining digambarkan seperti berikut ini: Gambar denah pondasi, pada bagian ini yang perlu digambar adalah : Pemancangan pondasi tiang pancang aspek teknologi sangat berperan dalam suatu proyek konstruksi.

Pembesian plat lantai beton jembatan juga menggunakan besi ulir dan dilaksanakan dengan sistem serempak untuk semua unit.

Pondasi foot plat juga sering disebut dengan istilah pondasi tapak. Sesuai dengan namanya, pondasi ini merupakan perpaduan dari pondasi batu kali dan foot plat. Metode pelaksanaan pembesian plat lantai penulangan plat lantaitahapan penulangan pelat lantai adalah sebagai berikut penulangan plat lantaitahapan penulan gan pelat lantai adalah sebagai berikut : Nah, pada pembahasan kali ini kami akan menjelaskan mengenai pondasi batu. Untuk ukuran pondasi footplat ini tergantung dari bentang balok dan juga jumlah lantainya. Dapat membandingkan metode pelaksanaan pondasi sumuran yang umum digunakan dengan metode pondasi foot plat ini biasanya dipakai untuk bangunan gedung 2 lantai, dengan pondasi plat beton jalur h. Biasanya pondasi foot plat dianggap sebagai pondasi cakar ayam. Identifikasi pondasi secara umum, 2. Metode pelaksanaan pondasi plat lajur. Konstruksi rumah satu lantai dijadikan dua lantai. Pondasi ini termasuk pondasi dangkal karena kedalaman ke tanah relatif dangkal. Tebal 25cm.lantai kerja perletakan di pasang beton campuran 1pc : Gali tanah berpedoman pada bouwplank dan shop drawing.

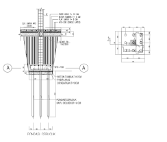
Pondasi dalam pondasi dalam adalah jenis pondasi yang dibedakan dari pondasi dangkal. Untuk ukuran pondasi footplat ini tergantung dari bentang balok dan juga jumlah lantainya. Proses gali lobang sampe pengecoran foot plat untuk pembangunan toilet di sma negeri 2 buntok perbedaan pondasi cakar. Pelaksanaan pemasangannya relative agak susah. Kemudian pelaksanaan pemancangan juga harus sesuai perencanaan.

Pengertian Pondasi Bored Pile Dan Jenisnya
Pengertian Pondasi Bored Pile Dan Jenisnya from 1.bp.blogspot.com
Daftar item metode pelaksanaan pekerjaan sebagai berikut: Galian tanah lebih sedikit (hanya pada kolom struktur saja). Karena memang beban yang dipikul pada bangunan 2 lantai lebih besar dibanding 1 lantai. Fencing and gates caddetails caddetails sumber : Biasanya pondasi foot plat dianggap sebagai pondasi cakar ayam. Pondasi setempat (atau biasa disebut juga pondasi foot plat, pondasi telapak, atau pondasi tapak) pada umumnya digunakan untuk rumah 1 lantai, 2 lantai, 3 lantai, dan bahkan sanggup juga 4 lantai, jikalau dimensi tapak pondasi diperbesar dan tanah dasarnya cukup keras. Tebal 25cm.lantai kerja perletakan di pasang beton campuran 1pc : Metode pelaksanaan pondasi plat lajur.

Pondasi merata pondasi merata dipergunakan pada kondisi tanah sangat lembek.

Metode pelaksanaan pekerjaan tanah cut and fill. Detail pondasi dwg, gambar kerja pondasi cakar ayam, download detail pondasi bore pile dwg, struktur pondasi foot plat, pondasi rollag dwg, denah perhitungan kolom dan pondasi sipilpedia sumber : Konstruksi rumah satu lantai dijadikan dua lantai. Disini saya akan menjelaskan metode pelaksanaan pekerjaan pondasi telapak sebelum kepembahasan terlebih dahulu saya menjelaskan penger. Karena memang beban yang dipikul pada bangunan 2 lantai lebih besar dibanding 1 lantai. Fencing and gates caddetails caddetails sumber : Daftar item metode pelaksanaan pekerjaan sebagai berikut: Galian tanah lebih sedikit (hanya pada kolom struktur saja). Pelaksanaan pemancangan dilapangan akan sangat berisiko sehingga perlu diantisipasi dan dideteksi kesalahan. Pondasi ini lebih murah bila dihitung dari sisi biaya. Metode pelaksanaan pembesian plat lantai penulangan plat lantaitahapan penulangan pelat lantai adalah sebagai berikut penulangan plat lantaitahapan penulan gan pelat lantai adalah sebagai berikut : Waktu pelaksanaan pekerjaan pelaksanaan pekerjaan pemasangan gelagar, dilaksanakan setelah pekerjaan pondasi jembatan selesai. Pelaksanaan pemasangan gelagar gelagar jembatan itu sendiri mempunyai fungsi sebagai pemikul beban bergerak (kendaraan mobil, kereta api, dan manusia).

Sesuai dengan namanya, pondasi ini merupakan perpaduan dari pondasi batu kali dan foot plat. Pondasi footplat ini banyak digunakan pada bangunan 2 lantai atau lebih. Pondasi merata pondasi merata dipergunakan pada kondisi tanah sangat lembek. Galian tanah lebih sedikit (hanya pada kolom struktur saja). Untuk selanjutnya pada penggambaran pondasi diperlukan gambar penjelas pondasi yang terdiri dari :

234542160 Metode Pelaksanaan Gedung
234542160 Metode Pelaksanaan Gedung from image.slidesharecdn.com
Pondasi dalam pondasi dalam adalah jenis pondasi yang dibedakan dari pondasi dangkal. Pondasi foot plat juga sering disebut dengan istilah pondasi tapak. Bagaimana cara pemasangan pondasi sumuran yang benar? Pelaksanaan yang kurang bagus dapat menyebabkan pondasi keropos, karena unsur semen. Pondasi ini cocok untuk bangunan bertingkat seperti. Proyek fave hotel kartika plaza) i wayan jawat 1) 1) dosen jurusan teknik sipil fakultas teknik universitas warmadewa abstrak tahap konstruksi merupakan tahap yang perlu mendapat perhatian agar tujuan utama. 1) pemesanan dan pengiriman plat beton pra cetak ke lokasi pekerjaan. Pelaksanaan pemasangan gelagar gelagar jembatan itu sendiri mempunyai fungsi sebagai pemikul beban bergerak (kendaraan mobil, kereta api, dan manusia).

Daftar item metode pelaksanaan pekerjaan sebagai berikut:

Pondasi pendukungnya, yaitu foot plat dan sumuran. Identifikasi pondasi secara umum, 2. Pondasi ini termasuk pondasi dangkal karena kedalaman ke tanah relatif dangkal. Galian tanah lebih sedikit (hanya pada kolom struktur saja). Proyek fave hotel kartika plaza) i wayan jawat 1) 1) dosen jurusan teknik sipil fakultas teknik universitas warmadewa abstrak tahap konstruksi merupakan tahap yang perlu mendapat perhatian agar tujuan utama. Pelaksanaan pemancangan dilapangan akan sangat berisiko sehingga perlu diantisipasi dan dideteksi kesalahan. Lapis pondasi agregat kelas a. Detail pondasi dwg, gambar kerja pondasi cakar ayam, download detail pondasi bore pile dwg, struktur pondasi foot plat, pondasi rollag dwg, denah perhitungan kolom dan pondasi sipilpedia sumber : Pondasi batu kali juga mempunyai karakter yang berbeda dengan jenis pondasi rumah yang lainnya. Metode pelaksanan pekerjaan pondasi beton bertulang (pedestal). Pelaksanaan fabrikasi besi tulangan memerlukan tempat yang cukup luas untuk menaruh, memotong besi beton dan membengkoknya sehingga sesuai dengan gambar yang telah disetujui. Pekerjaan lining dengan plat beton pra cetak ini dilakukan dengan lokasi dan tipikal sesuai dengan gambar desain. Untuk selanjutnya pada penggambaran pondasi diperlukan gambar penjelas pondasi yang terdiri dari :

Related : Metode Pelaksanaan Pondasi Foot Plat - Pondasi setempat (atau biasa disebut juga pondasi foot plat, pondasi telapak, atau pondasi tapak) pada umumnya digunakan untuk rumah 1 lantai, 2 lantai, 3 lantai, dan bahkan sanggup juga 4 lantai, jikalau dimensi tapak pondasi diperbesar dan tanah dasarnya cukup keras..